Sketsa kandang patio system (Van de Ven et al. 2009)
Oleh: Prof. Dr. Ir. Elly Tugiyanti, MP*
Berdasarkan uraian pada paragraf-paragraf sebelumnya, ada suatu pemikiran untuk meminimalkan penurunan kualitas DOC selama proses pengiriman dari hatchery ke kandang peternak, yaitu dengan membuat kandang kombinasi hatcher dan brooding. Pertimbangannya adalah suhu dan kelembapan yang dibutuhkan untuk hatcher dan brooding relatif sama. Selain itu hasil penelitian menunjukkan bahwa sistem kandang kombinasi ini tidak memengaruhi fisiologis dan performa ayam (Van de ven et al., 2011). Hatchery mengirimkan telur tetas antara umur 18-21 hari, sehingga DOC begitu menetas sudah ada di kandang. Model ini dikenal dengan nama patio system (Vencomatic, 2006). Patio System sebenarnya bukan merupakan sistem baru karena sudah dikembangkan di negara Belanda sejak sekitar tahun 2006 (Van de Ven et al., 2009).
Keuntungan dari sistem patio adalah begitu telur menetas, ayam akan dapat mengakses pakan dan minum sesuai dengan kebutuhan broiler modern. DOC tanpa makan dan minum selama lebih dari 24 jam memiliki efek negatif jangka panjang pada broiler (Augustine, 1982; Tarvid, 1992; Noy dan Sklan, 2001; Batal dan Parsons, 2002; Juul-Madsen et al., 2004). Ketika akses ke pakan pertama tertunda, DOC menjadi lebih rentan terhadap patogen, menunjukkan penurunan bobot badan, dan perkembangan jaringan dan organ usus, sistem kekebalan dan otot dada terhambat (Kornasio et al., 2011). Sistem ini membutuhkan keakuratan data jarak antara hatchery dan kandang peternak, juga waktu yang dibutuhkan serta kondisi kendaraan.
Dari sisi kendaraan, sebagai alat transportasi perlu difasilitasi mesin hatcher, suhu, kelembapan dan sirkulasi udara disesuaikan dengan kebutuhan embrio. Oleh karena itu kendaraan yang cocok adalah truk bak tertutup. Tinjauan dari sisi kandang, sistem ini menyediakan lingkungan yang sempurna untuk ayam dari menetas hingga akhir masa pemanenan. Pengoperasian harian patio system relatif sama dengan kandang closed house yaitu menciptakan mikroklimat senyaman mungkin bagi ayam secara otomatis (Gambar 1).
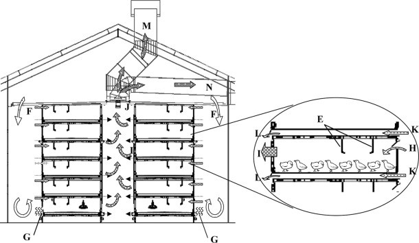
Perbedaannya adalah pada kandang patio system menggunakan cage bertingkat sampai 6 tingkat yang di tata 2 baris serta pada bagian lantai menggunakan syntetic conveyor belt yang dapat digerakkan. Setiap baris selanjutnya akan disebut sebagai unit patio. Pada periode brooding diatas conveyor ditaburi litter.
Pada gambar sebelah kanan menunjukkan bahwa tiap unit patio ada tempat untuk egg tray (E). Tempat egg tray telur tetas dari kendaraan dihubungkan langsung dengan tempat egg tray di kandang, kemudian egg tray tersebut akan berjalan secara otomatis mengantarkannya ke unit patio tempat pemeliharaan ayam. Campur tangan manusia sangat sedikit kecuali mengoperasikan alat/mesin, tujuannya mengurangi risiko goncangan dan perbedaan suhu yang tidak diinginkan.
Baca Juga: Kualitas dan Sirkulasi Udara yang Baik untuk Kandang Broiler
Kandang patio system juga dilengkapi inlet untuk masuknya udara dari koridor luar (F), water heating system (G), inlet udara ke unit patio (H), outlet untuk menggerakan udara ke the patio unit (I), exhaust fan (J), airflow antara conveyor floor (K), air outlet from space between conveyor floor (L), air outlet to outside air (M), dan ducted return air connection (N).
Selama penetasan, climate set point adalah suhu udara 34,5 °C (suhu udara yang diamati di sekitar telur sekitar 35 °C) dan RH minimum 35%. Udara diedarkan secara internal sampai tingkat CO2 mencapai 0,2%. Sejak saat itu, sebagian kecil udara yang meningkat secara bertahap diambil dari luar. Setelah menetas, suhu diturunkan 0,5 °C per hari selama minggu pertama dan penurunan selanjutnya secara bertahap sesuai dengan rekomendasi dari perusahaan pembibitan (Cobb-Vantress, 2008).
 Pada saat ayam sudah waktunya dipanen, syntetic conveyor belt lantai akan difungsikan untuk memanen ayam secara otomatis dari dalam kandang menuju ke kendaraan yang sudah dilengkapi dengan keranjang ayam. Syntetic conveyor belt lantai berfungsi ganda yaitu saat pemeliharaan ayam digunakan sebagai tempat untuk menabur litter akan tetapi setelah waktunya ayam dipanen, sementara conveyor belt tersebut berfungsi sebagai alat panen.
Patio system ini mengurangi tingkat stres pada ayam, hemat tenaga kerja, menyediakan mikroklimat seperti halnya kandang closed house, sehingga dimungkinkan performa broiler akan lebih baik dan peternak dapat mendapatkan profit yang memadai. Sistem perkandangan kombinasi ini diharapkan dapat meningkatkan produksi, kesejahteraan hewan dan kerja manusia (lingkungan). *Guru Besar Fakultas Peternakan Universitas Jenderal Soedirman
Artikel ini merupakan kelanjutan dari artikel Majalah Poultry Indonesia edisi April 2021 dengan judul “Kandang Patio System Mungkinkah Diaplikasikan di Indonesia”. Untuk berlangganan atau informasi lebih lanjut silahkan mengirim email ke: sirkulasi@poultryindonesia.com atau hubungi 021-62318153